︎
Readymake
Design
About
Contact
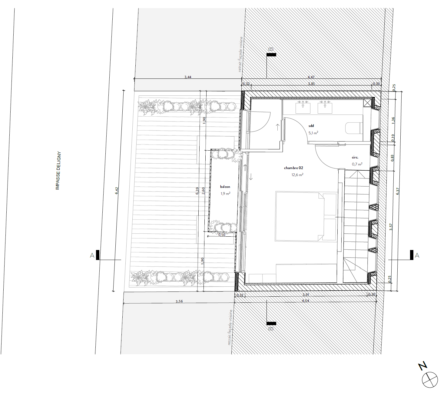
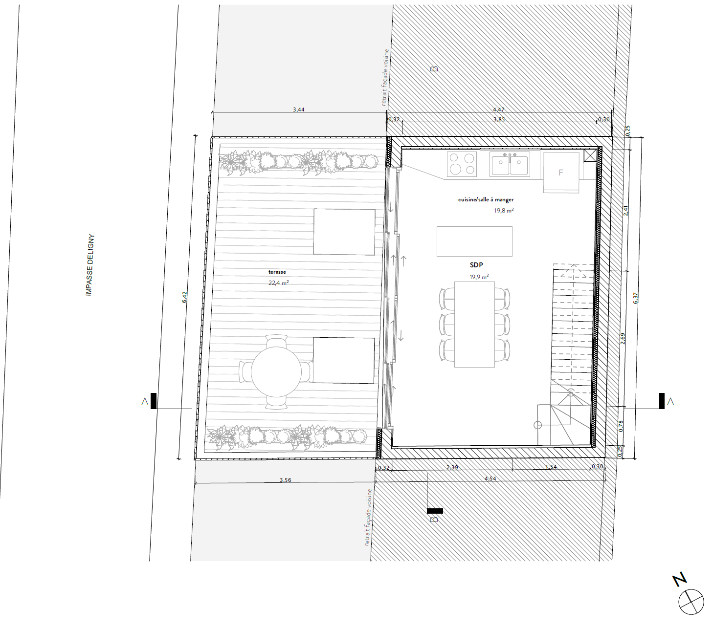
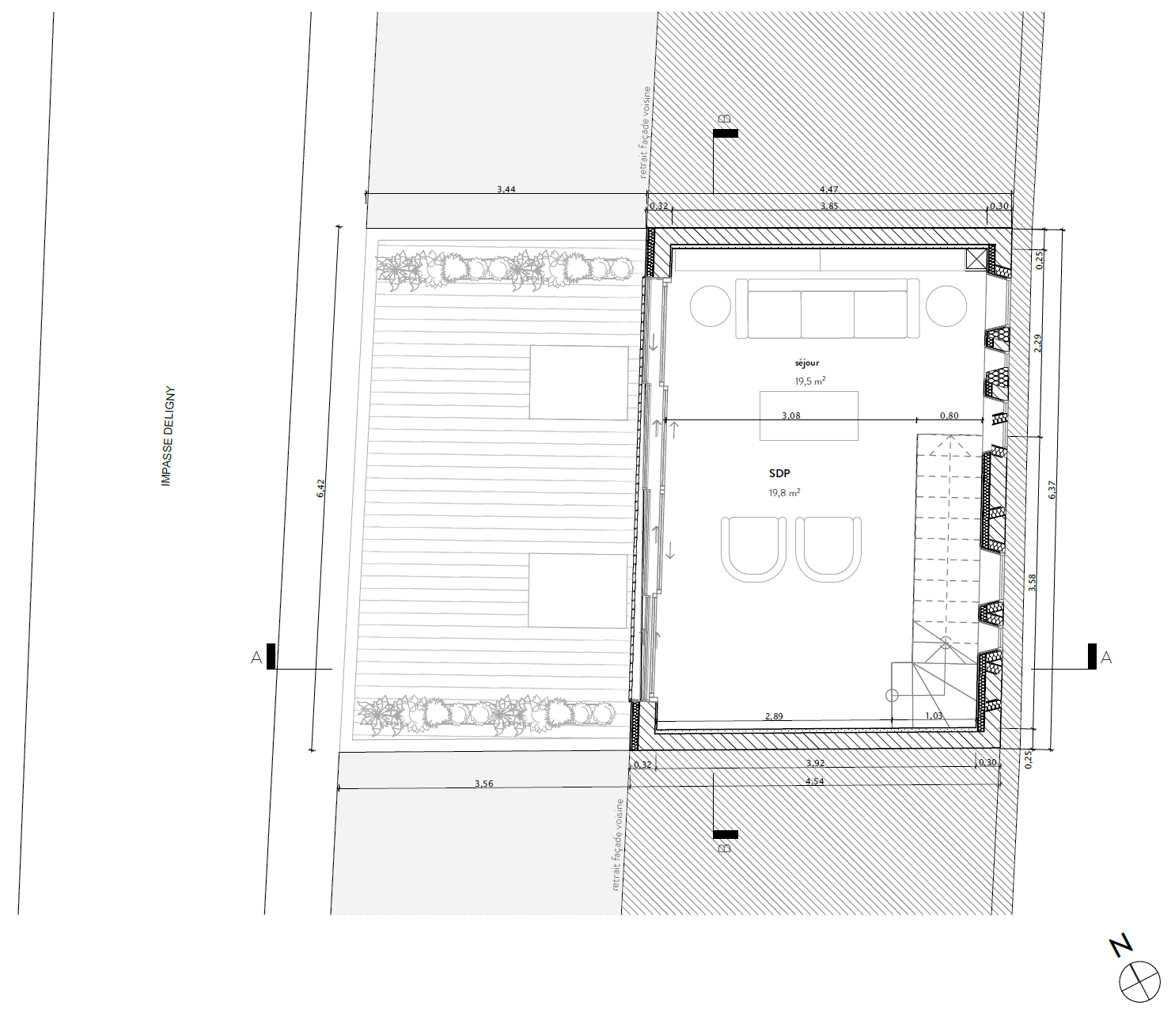
Maison Deligny
Private residence construction
2021_2023
Construction in progress
Paris _ France
︎
︎